Final Review Studio Informal Learning Spaces
Dear Friends,
We would like to cordially invite you to the final review of our Design Studio about “Informal Learning Spaces”.
During the day, students will present their analysis and observations of three learning environments at ETH: The Groundfloor of ONA Building from the Department of Architecture (D-ARCH), The Classroom G42 in the CHN Building form the Department of Environmental System Science (D-USYS) and the InfoCenter in the Main ETH Building (ETH Library).
The day will be structured in two parts, a morning session with presentations and feedbacks, and a public exhibition in the afternoon.
In the morning, students will present where they started, what they achieved, and especially discuss how to proceed. In that sense the review is not a final step, and more an invitation to start thinking beyond the timeframe of this one semester which then lies behind us.
Next to our guests, the teaching team, including Momoyo Kaijima, Professor at the chair of Architectural Behaviorology, Freek Persyn, Professor of the Newrope chair of Architecture and Urban Transformation, Seppe De Blust, post-doc at the Newrope chair and Beatrix Emo, Researcher at the Chair of Cognitive Science of Prof. Christoph Hölscher, will be present for all the presentations.
You are very welcome to join us partly or for the whole day. Looking forward to see you at Groundfloor of ONA Building.
WELCOME
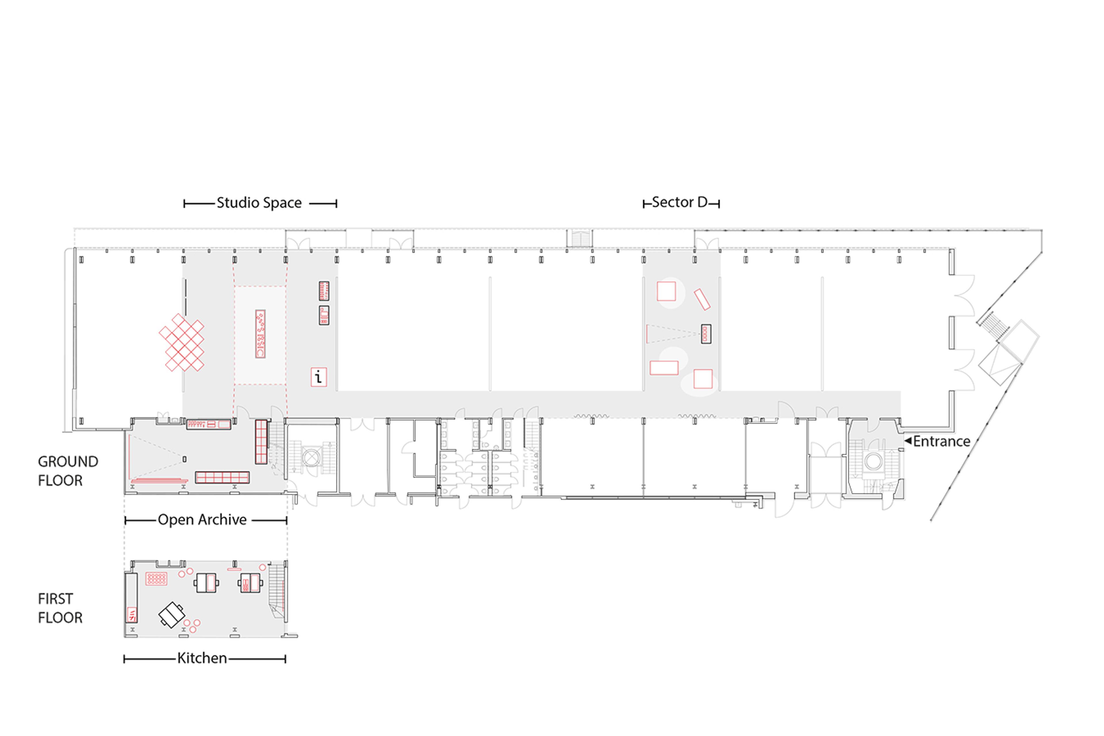
9:00 Coffee in Sector D (see plan)
HOW TO CONTINUE?
09:15 - 10:15 INFOCenter in Sector D
Antonina, David, Florin, Gabriele,Nicole, Noah, Stefan, Quibing with Eva Edinger (ETH Libary)
10:15 - 11.15 CHN Classroom in the Kitchen
Group 1: (Class)room of Requirements
Anna, Alan, Clément, Daryl, Ming
Group 2: Future Roots
Dimitri, Pierre, Ramona
with BinBin Pearce, Anouk N’Guyen, Mauro Vareni (D-USYS)
11:15 - 12:15 ONA in the Studio Space
Group 1: Connecting Islands
Francesco, Hannah, Joel, Michel, Timo
Group 2: Circus
Chidi, Georgina, Jan, Przemysław
with Thomas Kurer (A&A), Markus Zubler (ETH Immobilien)
STUDIO FORMAT
12:15 - 13:00 Discussion in Sector D
LUNCH
13:00 - 14:00
PUBLIC EXHIBITION
14:00 Vernissage
14:30 Guided Tour I: Design, Construction, Material of the Interventions
15:00 Guided Tour II: Impact on Learning behaviour, methods and formats
MUTUAL FEEDBACK
16:00 Reflection and Outlook
– Studio Announcement
– Final Review
– Tuesday 21st of December 2021
– 09:00-16:00
- at ONA, Neunbrunnenstrasse 50, 8050 Oerlikon
– Studio Team: Momoyo Kaijima, Freek Persyn, Grégoire Farquet, Charlotte Schaeben, supported by Seppe de Blust and Beatrix Emo
– Guests: Eva Edinger (ETH Library), Christian Pohl (D-USYS) Binbin Pearce (D-USYS), Anouk N'Guyen (D-USYS), Mauro Vareni (D-USYS), Thomas Kurer (A&A Liegenschaften), Markus Zubler (ETH Immobilien), Christoph Hoelscher (D-GESS)
– Students: Jan Aeberhard, Nicole Alder, Gabriele Arba, Timo Bauer, Alan Bigelow, Michel Crelier, Clement Estreicher, Joel Fischer, Przemyslaw Godlewski, Ming Ki, Ramona Köchli, Hannah Kunzelmann, Qiubing Liu, Florin Meier, Pierre Menoud, Antonina Nikolic, Anna Ozhiganova, Francesco Pizzillo, Noah Reifler, Chidi Speranza, Georgina Termens Guma, Daryl Thai, David Troost, Dimitri Weber






